2-5. 設計プラン作成
② レイアウトを考える
プラン作成前は、医院コンセプトやターゲットとする患者層、ご予算など含めたご希望を明確にして、設計者と共有する事が医院造り成功への第一歩です。
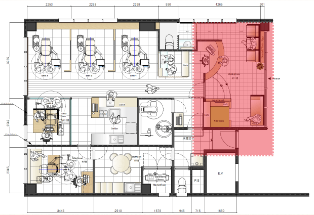
全体の配置
限りあるスペースにおいて患者様の居心地を考慮したゾーニングやドクター、スタッフの作業動線の効率化、収納をバランス良く配置する。
玄関
閉鎖的な印象を与えない。開放的である程度中の様子が外から見えるようにする。
待合室
閉鎖的な印象を与えない。開放的である程度中の様子が外から見えるようにする。待合室は広めにする。そこに居る時間が苦にならない、緊張や痛みを和らげる空間をめざす。
●患者様の椅子が入口に対面しないようにする。
●患者様同士の視線が合わないようする。
受付
●診療室へのアクセスが便利な位置。
●受付内部から診療室内部が確認でき、待合室から診療室内が見えにくくなるように配慮する。
洗口コーナー
待合室の他の患者様から見えないように配置する。清潔かつ洗練された空間に。
-
2-4. 候補物件の市場調査
- テナント開業TOP
-
2-6. 金融機関との面談・融資申し込み



