歯科従事者のための会員サービス
ログイン
会員登録(無料)
企業情報
採用情報
ショールーム
添付文書検索
SDS
お問合せ
商品情報
セミナー情報
学術情報
開業・承継
お客様サポート
ログイン
歯科従事者のための会員サービス
ログイン
会員登録(無料)
HOME
>
開業支援TOP
>
開業フロー
>
1-1. 医院のイメージを把握する
>
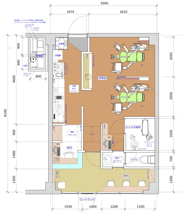
ユニット台数、坪数、導線から選ぶ。
ユニット台数、坪数、導線から選ぶ。
15坪ユニット2台
お気軽にお問い合わせください。
経験豊富なスタッフがご対応させていただきます。
テナント開業TOP
1-2.
開業候補地シミュレーション
ポップアップ